
Gewerbeeinheit (z.B. Laden, Büro)
Aktenzeichen: 0005 K 0016/2023
Nordrhein-Westfalen
Gelsenkirchen
Versteigerungstermin
Mittwoch, 13. Mai 2026, 09:00 Uhr
Versteigerungsort
Amtsgericht Gelsenkirchen, Hauptgebäude, Bochumer Straße 79, 45886 Gelsenkirchen, Etage 2, Sitzungssaal 202
Beschreibung
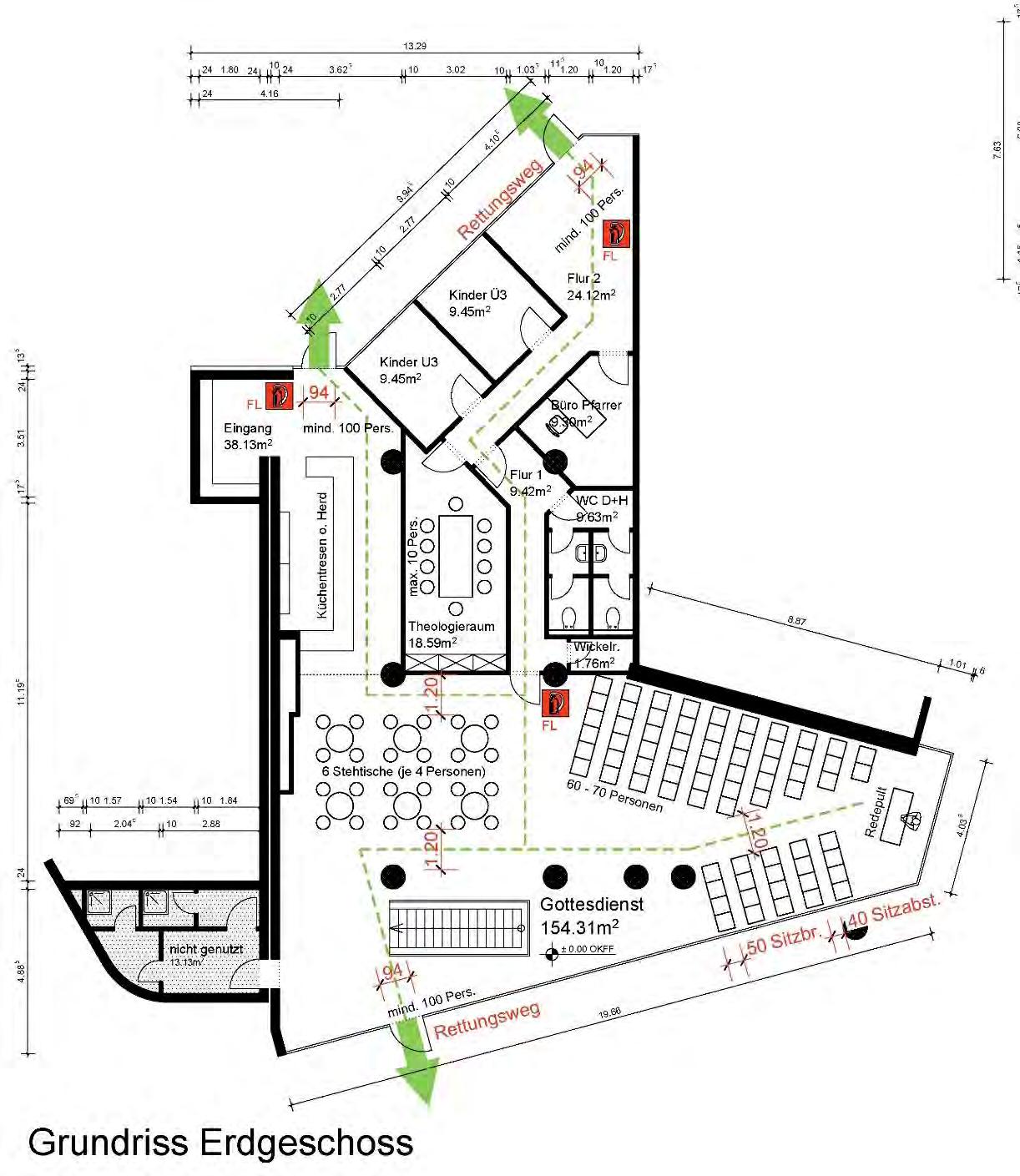
Das Grundstück ist bebaut mit einer Eigentumswohnanlage mit 194 Wohneinheiten, 8 Gewerbeeinheiten und einer Tiefgarage. Das Teileigentumsrecht Nr. B 3 liegt in dem Gebäudeteil Overwegstraße 32, 45879 Gelsenkirchen-Altstadt, Baujahr 1975.
Aufteilung: Erdgeschoss: Eingangsbereich, Küche, Lager, Duschbereich, Flur, Wickelraum, Herren- und Damen-WC, innenliegender Lagerraum, 2 Kinderspielräume, innenliegendes Büro, vorderer und rückwärtiger Ladenbereich. Kellergeschoss: Flur, 3 Lagerräume, Umkleide Lagerfläche, Duschraum. Eine WEG-Verwaltung ist vorhanden. Die Einsichtnahme des Gutachtens nebst allen Anlagen wird dringend angeraten!
Objektdetails
Ausstattung & Eigenschaften
Gutachten-Analyse
Raumaufteilung
Zustand
Festgestellte Mängel (3)
Baubeschreibung
Renovierungsbedarf
Energie & Heizung
Grundbuchdaten
Infrastruktur in der Nähe
Marktattraktivität
Verkehrswert
260.000 €
Aktionen
E-Mail-Benachrichtigung bei Absage, Verlegung oder Preisänderung des Versteigerungstermins.
Versteigerungsart
Versteigerung im Wege der Zwangsvollstreckung
Ähnliche Objekte
Ähnliche Objekte in der Nähe werden bald verfügbar.
