gewerblich genutztes Grundstück
Aktenzeichen: 0023 K 0014/2022
Nordrhein-Westfalen
Lünen
Versteigerungstermin
Freitag, 10. Juli 2026, 10:00 Uhr
Versteigerungsort
Amtsgericht Lünen, Hauptgebäude, Spormeckerplatz 5, 44532 Lünen, Sitzungssaal 204
Beschreibung
Objektdetails
Ausstattung & Eigenschaften
Gutachten-Analyse
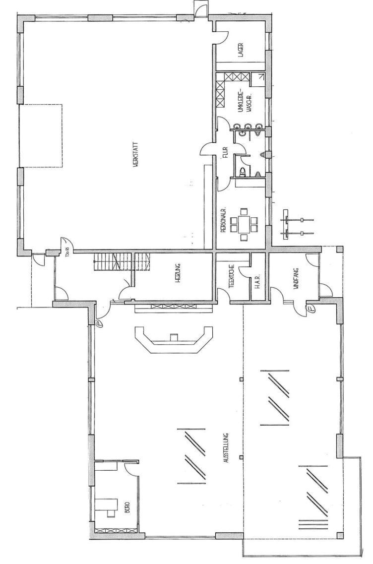
Raumaufteilung
Zustand
Festgestellte Mängel (3)
Baubeschreibung
Renovierungsbedarf
Energie & Heizung
Grundbuchdaten
Infrastruktur in der Nähe
Marktattraktivität
Verkehrswert
513.000 €
Aktionen
E-Mail-Benachrichtigung bei Absage, Verlegung oder Preisänderung des Versteigerungstermins.
Versteigerungsart
Versteigerung im Wege der Zwangsvollstreckung
Ähnliche Objekte
Ähnliche Objekte in der Nähe werden bald verfügbar.

