
Mehrfamilienhaus
Aktenzeichen: 0841 K 0018/2023
Hessen
Frankfurt am Main
Versteigerungstermin
Donnerstag, 07. Mai 2026, 10:00 Uhr
Versteigerungsort
Amtsgericht Frankfurt am Main, Heiligkreuzgasse 34, 60313 Frankfurt am Main, Raum: Saal/Gebäude 202 A
Beschreibung
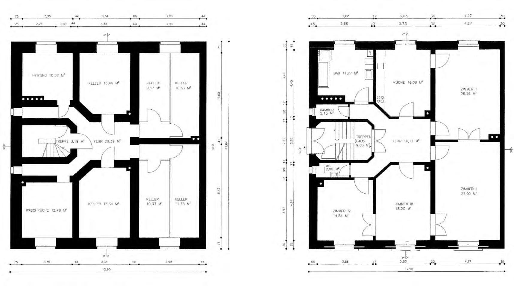
Aufteilung:
KG: Heizungsraum, Waschraum, Kellerräume
EG: 4-Zimmer-Wohnung nebst Küche, Bad und Gäste-WC
Antragsteller:
Vertr. d. Rechtsanwalt P.-L. Mamok
Tel. 069-975831-0
Zeichen: 319/22
Hinweis:
Kontoverbindung für die Überweisung der Sicherheitsleistung:
Gerichtskasse Frankfurt am Main: Landesbank Hessen-Thüringen,
IBAN: DE73 5005 0000 0001 0060 30, BIC: HELADEFFXXX, eine Woche vor dem Termin;
unter Angabe des Kassenzeichens: 137053002013.
1.-3. OG: je eine 4-Zimmer-Wohnung nebst Küche, Bad und Gäste-WC
4. OG: 2-Zimmer-Wohnung nebst Küche und Bad sowie eine Einheit bestehend aus zwei Zimmern, Küche und Bad
Baujahr ca. 1896; Wiederaufbau Dachgeschoss ca. 1950 (soweit ersichtlich aus Bauakte)
Wohn- / Nutzfläche ca. 652,30 m²
Objektdetails
Ausstattung & Eigenschaften
Gutachten-Analyse
Raumaufteilung
Zustand
Festgestellte Mängel (3)
Baubeschreibung
Renovierungsbedarf
Energie & Heizung
Grundbuchdaten
Infrastruktur in der Nähe
Marktattraktivität
Verkehrswert
1.600.000 €
Aktionen
E-Mail-Benachrichtigung bei Absage, Verlegung oder Preisänderung des Versteigerungstermins.
Versteigerungsart
Zwangsversteigerung zum Zwecke der Aufhebung der Gemeinschaft
Ähnliche Objekte
Ähnliche Objekte in der Nähe werden bald verfügbar.
