Eigentumswohnung (1 bis 2 Zimmer)
Aktenzeichen: 0008 K 0029/2024
Niedersachsen
Holzminden
Versteigerungstermin
Freitag, 03. Juli 2026, 10:00 Uhr
Versteigerungsort
Amtsgericht Holzminden, Karlstraße 15, 37603 Holzminden, Raum: Saal 33
Beschreibung
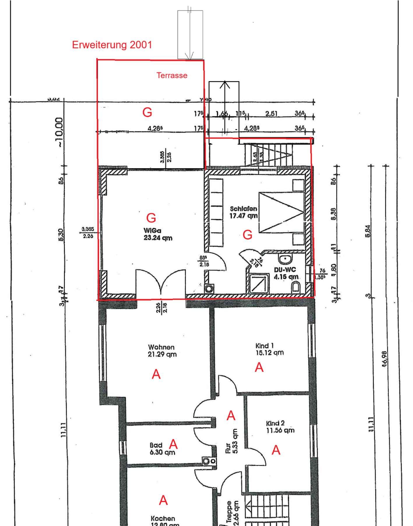
Zwei-Zimmer-Eigentumswohnung im Dachgeschoss mit 69 qm Wohnfläche und einer rund 33 qm großen Erweiterung des Wohnraumes in Ausbauzustand;
das Grundstück ist bebaut mit einem zweigeschossigen Dreifamilienwohnhaus, voll unterkellert, Dachgeschoss vollständig ausgebaut, Baujahr 1962, Erweiterung um rund 1/3 in 2001
das Grundstück ist bebaut mit einem zweigeschossigen Dreifamilienwohnhaus, voll unterkellert, Dachgeschoss vollständig ausgebaut, Baujahr 1962, Erweiterung um rund 1/3 in 2001
Objektdetails
Ausstattung & Eigenschaften
Gutachten-Analyse
Raumaufteilung
Zustand
Festgestellte Mängel (3)
Baubeschreibung
Renovierungsbedarf
Energie & Heizung
Grundbuchdaten
Infrastruktur in der Nähe
Marktattraktivität
Verkehrswert
82.000 €
Aktionen
E-Mail-Benachrichtigung bei Absage, Verlegung oder Preisänderung des Versteigerungstermins.
Versteigerungsart
Zwangsversteigerung zum Zwecke der Aufhebung der Gemeinschaft
Ähnliche Objekte
Ähnliche Objekte in der Nähe werden bald verfügbar.

