
Gewerbeeinheit (z.B. Laden, Büro)
Aktenzeichen: 0070 K 0054/2025
Berlin
Neukölln
Versteigerungstermin
Mittwoch, 10. Juni 2026, 09:30 Uhr
Versteigerungsort
Amtsgericht Neukölln, Saal 128
Beschreibung
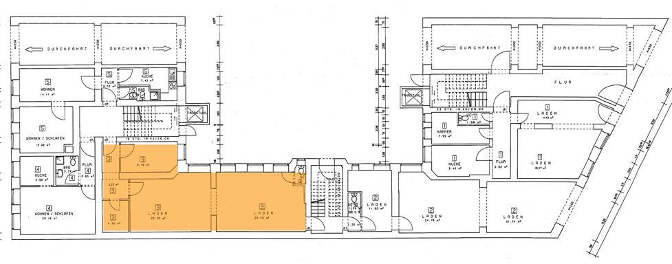
Nach den Feststellungen der Sachverständigen liegt das Sondereigentum im Erdgeschoss rechts des Seitenflügels eines 6-geschossigen Wohn- und Geschäftshauses, Baujahr ca. 1894. Die Gewerbeeinheit besteht aus vier Räumen, einem Flur und einer Toilette. Ausweislich der Teilungserklärung beträgt die Nutzfläche 75,60 qm. Die weiteren Einzelheiten können dem im Amtsgericht Neukölln (Zimmer 118) ausliegendem Gutachten entnommen werden.
Objektdetails
Ausstattung & Eigenschaften
Gutachten-Analyse
Raumaufteilung
Zustand
Festgestellte Mängel (3)
Baubeschreibung
Renovierungsbedarf
Energie & Heizung
Grundbuchdaten
Infrastruktur in der Nähe
Marktattraktivität
Verkehrswert
360.000 €
Aktionen
E-Mail-Benachrichtigung bei Absage, Verlegung oder Preisänderung des Versteigerungstermins.
Versteigerungsart
Versteigerung im Wege der Zwangsvollstreckung
Ähnliche Objekte
Ähnliche Objekte in der Nähe werden bald verfügbar.
