Mehrfamilienhaus
Aktenzeichen: 0654 K 0014/2025
Nordrhein-Westfalen
Duisburg
Versteigerungstermin
Mittwoch, 19. August 2026, 09:00 Uhr
Versteigerungsort
Amtsgericht Duisburg, Nebenstelle, Kardinal-Galen-Straße 124-132, 47058 Duisburg, Etage 2, Sitzungssaal C215
Beschreibung
Die Grundstücksgröße beträgt 340 m².
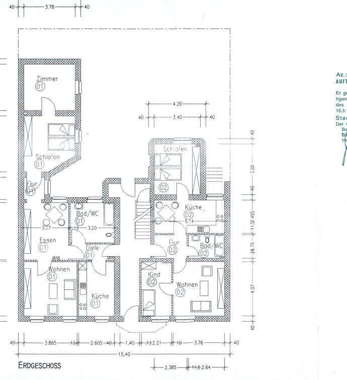
Nach den in den Hausakten enthaltenen Grundrissen gliedern sich die Geschossflächen in insgesamt zehn Nutzungseinheiten; die Flächen des Anbaus sind dabei jeweils einer Nutzungseinheit zugeordnet.
In der im Rahmen der TÜV-Feststellungen vorgefundenen Nutzungssituation sind im Anbau hingegen drei separate Nutzungseinheiten angeordnet. Im Spitzboden ist eine Nutzungseinheit vorhanden. Insgesamt ergeben sich damit aktuell zwölf Nutzungseinheiten. Vor diesem Hintergrund ist die Genehmigungssituation (insbesondere hinsichtlich der Anzahl und Abgrenzung der Nutzungseinheiten) im Detail zu überprüfen.
Im Jahr 2023 wurde das Gebäude durch die Stadt Duisburg (Task Force Problemimmobilien) geschlossen. Es bestehen erhebliche Bauschäden/Baumängel. Dem Gericht liegen hierzu Berichte des TÜV Nord sowie der Feuerwehr Duisburg vor.
Die Liegenschaft befindet sich in einem nicht bewohnbaren Zustand. Es besteht erheblicher Instandhaltungsstau sowie Modernisierungs- und Renovierungsbedarf bis zu einer nachhaltigen Neuvermietung.
Kontoverbindung Sicherheitsleistung:
ZZJ Hamm
IBAN: DE08 3005 0000 0001 4748 16
LB Hessen-Thüringen,
Verwendungszweck: AG Duisburg, Geschäftszeichen, Sicherheit, Datum der Versteigerung
Ansprechpartner:
S-Immobilien GmbH (Telefon: 0201/103 5923 und 0201/103 5939)
Objektdetails
Ausstattung & Eigenschaften
Gutachten-Analyse
Raumaufteilung
Zustand
Festgestellte Mängel (3)
Baubeschreibung
Renovierungsbedarf
Energie & Heizung
Grundbuchdaten
Infrastruktur in der Nähe
Marktattraktivität
Verkehrswert
128.000 €
Aktionen
E-Mail-Benachrichtigung bei Absage, Verlegung oder Preisänderung des Versteigerungstermins.
Versteigerungsart
Versteigerung im Wege der Zwangsvollstreckung
Ähnliche Objekte
Ähnliche Objekte in der Nähe werden bald verfügbar.

