
Einfamilienhaus
Aktenzeichen: 0007 K 0026/2025
Hessen
Büdingen
Versteigerungstermin
Dienstag, 28. April 2026, 11:00 Uhr
Versteigerungsort
Amtsgericht Büdingen, Stiegelwiese 1, 63654 Büdingen, Raum: Saal 1
Beschreibung
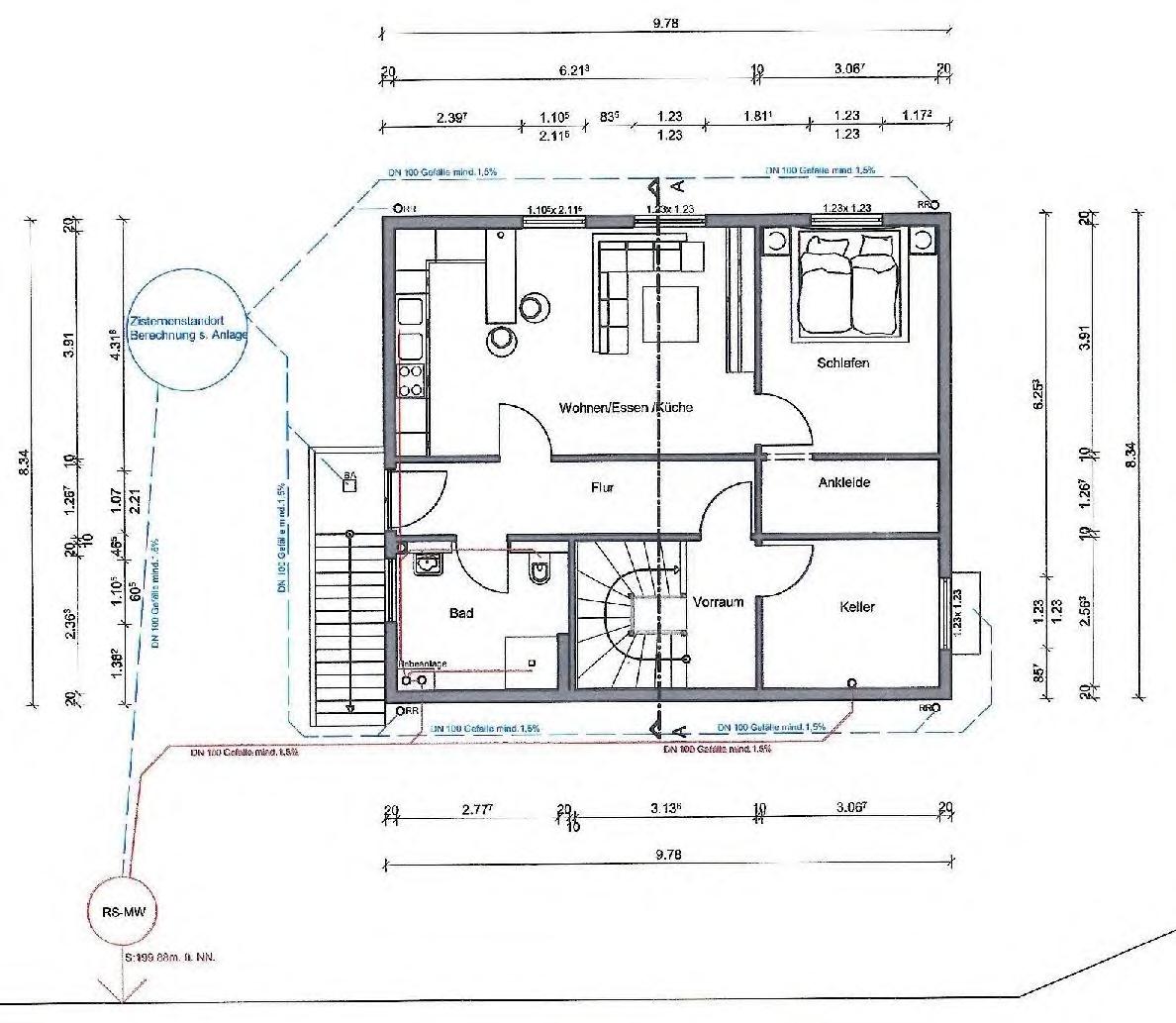
mit Einliegerwohnung. Vermutlich Holzständerbauweise auf Keller aus Betonfertigteilen. Teilausgebautes UG/EG/ausgebautes DG.
Objektdetails
Ausstattung & Eigenschaften
Gutachten-Analyse
Raumaufteilung
Zustand
Festgestellte Mängel (3)
Baubeschreibung
Renovierungsbedarf
Energie & Heizung
Grundbuchdaten
Infrastruktur in der Nähe
Marktattraktivität
Verkehrswert
387.000 €
Aktionen
E-Mail-Benachrichtigung bei Absage, Verlegung oder Preisänderung des Versteigerungstermins.
Versteigerungsart
Versteigerung im Wege der Zwangsvollstreckung
Ähnliche Objekte
Ähnliche Objekte in der Nähe werden bald verfügbar.
