Wohn-/Geschäftshaus, Garage, Wohn-/Geschaftshaus, Garage
Aktenzeichen: 0019 K 0009/2025
Nordrhein-Westfalen
Höxter
Versteigerungstermin
Freitag, 29. Mai 2026, 09:00 Uhr
Versteigerungsort
Amtsgericht Höxter, Hauptgebäude, Möllingerstr. 8, 37671 Höxter, Etage E, Sitzungssaal 1
Beschreibung
A) Eingeschossiges, tlw. unterkellertes Wohnhaus (ca. Bj.1930) mit ausgebauten Dachgeschoss (ca. Bj.1950) und integrierter Garage (ca. Bj.1945)
B) Eingeschossiges untergellertertes Lagergebäude mit Flachdach (ca. 1960)
C) An B) gebaute eingeschossige große Doppelgarage (ca. Bj. 1945) mit auf dem Flachdach befindinglichem weiteren Raum.
D) Eingeschossiger Kleinstall
E) Zweigeschossiger Kleinstall
Insgesamt ist der Bauzustand mäßig, verbunden mit erheblichen Mühen und Kosten zur Nutzung künftiger Nutzung. Die Bausubstanz ist in einem guten Zustand.
Objektdetails
Ausstattung & Eigenschaften
Gutachten-Analyse
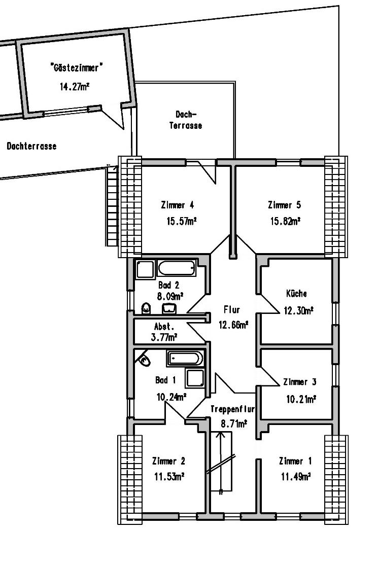
Raumaufteilung
Zustand
Festgestellte Mängel (3)
Baubeschreibung
Renovierungsbedarf
Energie & Heizung
Grundbuchdaten
Infrastruktur in der Nähe
Marktattraktivität
Verkehrswert
170.000 €
Aktionen
E-Mail-Benachrichtigung bei Absage, Verlegung oder Preisänderung des Versteigerungstermins.
Versteigerungsart
Versteigerung im Wege der Zwangsvollstreckung
Ähnliche Objekte
Ähnliche Objekte in der Nähe werden bald verfügbar.

