Eigentumswohnung (3 bis 4 Zimmer)
Aktenzeichen: 0014 K 0043/2025
Gutachten-Analyse
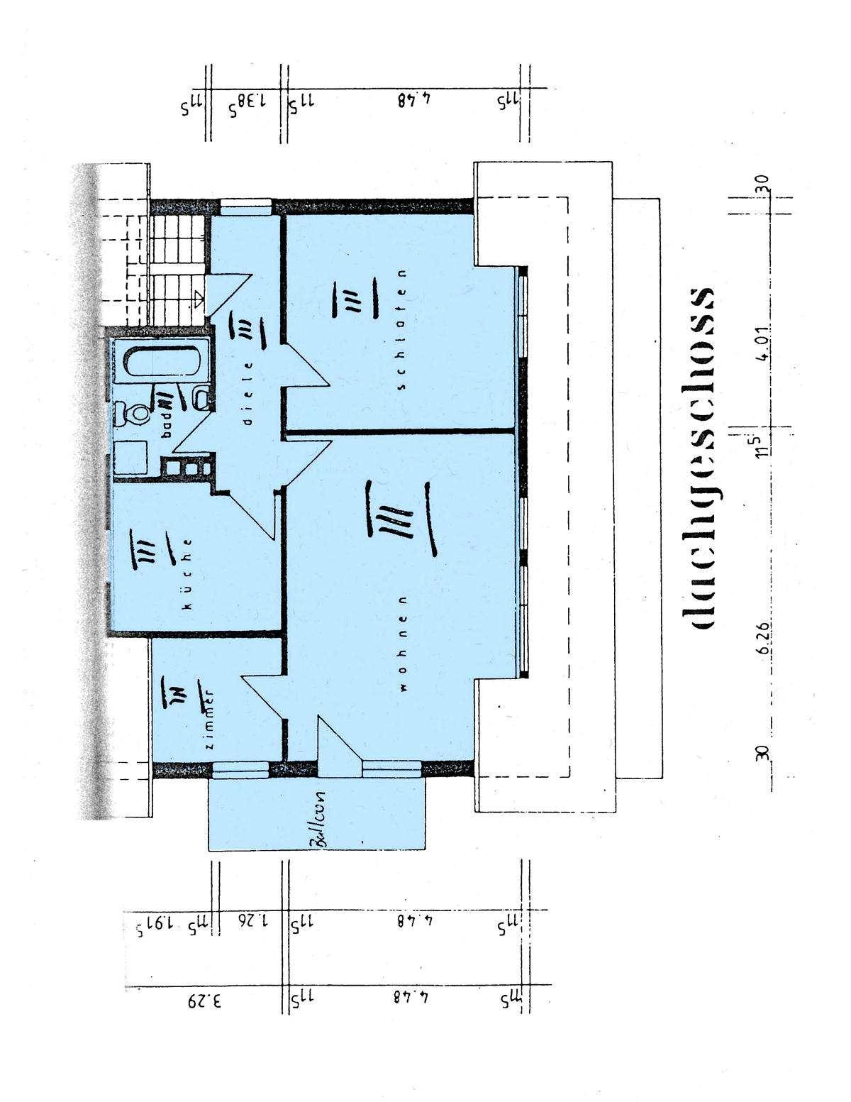
Raumaufteilung
Zustand
Festgestellte Mängel (3)
Baubeschreibung
Renovierungsbedarf
Energie & Heizung
Grundbuchdaten
Infrastruktur in der Nähe
Marktattraktivität
Verkehrswert
82.000 €
Aktionen
E-Mail-Benachrichtigung bei Absage, Verlegung oder Preisänderung des Versteigerungstermins.
Versteigerungsart
Versteigerung im Wege der Zwangsvollstreckung
Ähnliche Objekte
Ähnliche Objekte in der Nähe werden bald verfügbar.

