
Grundstück bebaut mit Einfamilienwohnhaus mit Anbau; Grundstücke
Beschreibung
Objektbeschreibung/Lage(lt Angabe d. Sachverständigen):
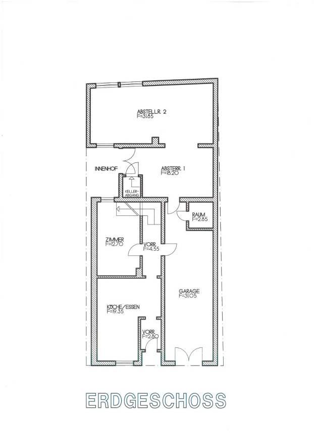
Leicht trapezförmiges Grundstück bebaut mit Einfamilienwohnhaus mit Anbau (Schuppen) und Teilunterkellerung (Zugang zu teilweiser Unterkellerung über Flst. 59);
Baujahr vermutlich 1950 - 1960; Wohnfläche ca. 205 m²; Beheizung durch einzelne Nachtspeicheröfen sowie Elektroheizgeräte;
Flachdach über Anbau begehbar; Zustand insgesamt normal, gewisser Renovierungs- und Instandsetzungsbedarf jedoch ersichtlich; Objekt leerstehend;
Lage des Grundstücks im Überschwemmungsgebiet des Mains
Im Übrigen wird auf die ausführliche und differenzierte Darstellung im Gutachten verwiesen.
Objektbeschreibung/Lage(lt Angabe d. Sachverständigen):
Trapezförmiges Grundstück ohne Wohnbebauung, nur mit Kellergeschoss; Baujahr ca. 1985; seit Bauausführung keine weiteren Maßnahmen getätigt (war Witterungen und Überschwemmungen ausgesetzt); Konstruktion bzw. Trageigenschaften können nicht beurteilt werden:
Lage im Überschwemmungsgebiet des Mains.
Objektbeschreibung/Lage(lt Angabe d. Sachverständigen):
Leicht trapezförmiges, ebenes Grundstück; mittlere Länge ca. 20,00 m; mittlere Tiefe ca. 21,00 m; tatsächliche Nutzung als Grünland; Lage im Überschwemmungsgebiet des Mains.
Objektbeschreibung/Lage(lt Angabe d. Sachverständigen):
Fast rechteckiges Grundstück bebaut mit Einfamilienwohnhaus mit Anbau (Schuppen) und Teilunterkellerung; Baujahr vermutlich im 19. Jahrhundert; Wohnfläche ca. 113 m²;
lt. Kaminkehrer ist keine Feuerungsanlage angemeldet, jedoch befinden sich Heizkörper im Objekt und ein Einzelofen im Erdgeschoss; Objekt leerstehend und in verwahrlostem/vermülltem Zustand;
Lage des Grundstücks im Überschwemmungsgebiet des Mains
Im Übrigen wird auf die ausführliche und differenzierte Darstellung im Gutachten verwiesen.
Objektbeschreibung/Lage(lt Angabe d. Sachverständigen):
Unregelmäßig geschnittenes Grundstück bebaut mit Lagergebäude/Garage; Baujahr vermutlich 1950 - 1960; keine Sanitärinstallation/Heizung/Warmwasserversorgung vorhanden; Nutzfläche EG und OG jeweils ca. 108 m²; Objekt leerstehend und in verwahrlostem und vermülltem Zustand
Grundstück befindet sich im Überschwemmungsgebiet;
Im Übrigen wird auf die ausführliche und differenzierte Darstellung im Gutachten verwiesen.
Objektdetails
Ausstattung & Eigenschaften
Gutachten-Analyse
Raumaufteilung
Zustand
Festgestellte Mängel (3)
Baubeschreibung
Renovierungsbedarf
Energie & Heizung
Grundbuchdaten
Infrastruktur in der Nähe
Marktattraktivität
Aktionen
Versteigerungsart
Ähnliche Objekte
Ähnliche Objekte in der Nähe werden bald verfügbar.
