Garage, Eigentumswohnung (3 bis 4 Zimmer)
Aktenzeichen: 0012 K 0015/2024
Nordrhein-Westfalen
Lippstadt
Versteigerungstermin
Freitag, 12. Juni 2026, 09:30 Uhr
Versteigerungsort
Amtsgericht Lippstadt, Hauptgebäude, Lipperoder Str. 8, 59555 Lippstadt, Etage E, Sitzungssaal I
Beschreibung
Es ist ein Sondernutzungsrecht an einer Grundstücksfläche zugeordnet. Im Garten befindet sich ein Pool.
Objektdetails
Ausstattung & Eigenschaften
Gutachten-Analyse
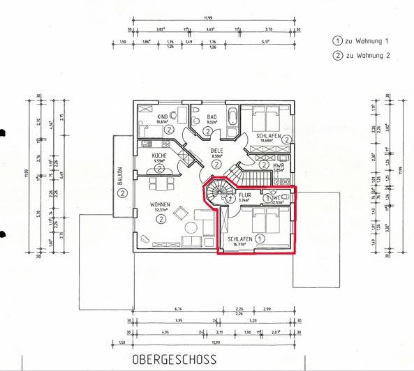
Raumaufteilung
Zustand
Festgestellte Mängel (3)
Baubeschreibung
Renovierungsbedarf
Energie & Heizung
Grundbuchdaten
Infrastruktur in der Nähe
Marktattraktivität
Verkehrswert
337.000 €
Aktionen
E-Mail-Benachrichtigung bei Absage, Verlegung oder Preisänderung des Versteigerungstermins.
Versteigerungsart
Zwangsversteigerung zum Zwecke der Aufhebung der Gemeinschaft
Ähnliche Objekte
Ähnliche Objekte in der Nähe werden bald verfügbar.

