
Garage, Doppelhaushälfte
Aktenzeichen: 0023 K 0002/2024
Nordrhein-Westfalen
Lünen
Versteigerungstermin
Montag, 11. Mai 2026, 10:00 Uhr
Versteigerungsort
Amtsgericht Lünen, Hauptgebäude, Spormeckerplatz 5, 44532 Lünen, Etage EG, Sitzungssaal 127
Beschreibung
Es besteht ein allgemeiner Instandhaltungsstau.
Baujahr Wohnhaus ca. 1923, Anbau ca. 1984, Garage ca. 1985. Wohnfläche ca. 96,07 qm, Nutzfläche Terrasse ca. 24 qm.
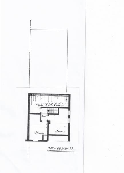
Für den rückwärtig angebauten Schuppen sind keine Genehmigungsunterlagen vorhanden. Auch der Dachgeschossausbau ist nicht aktenkundig
Objektdetails
Ausstattung & Eigenschaften
Gutachten-Analyse
Raumaufteilung
Zustand
Festgestellte Mängel (3)
Baubeschreibung
Renovierungsbedarf
Energie & Heizung
Grundbuchdaten
Infrastruktur in der Nähe
Marktattraktivität
Verkehrswert
185.200 €
Aktionen
E-Mail-Benachrichtigung bei Absage, Verlegung oder Preisänderung des Versteigerungstermins.
Versteigerungsart
Zwangsversteigerung zum Zwecke der Aufhebung der Gemeinschaft
Ähnliche Objekte
Ähnliche Objekte in der Nähe werden bald verfügbar.
