Eigentumswohnung (3 bis 4 Zimmer)
Aktenzeichen: 0844 K 0001/2025
Hessen
Frankfurt am Main
Versteigerungstermin
Donnerstag, 09. Juli 2026, 10:00 Uhr
Versteigerungsort
Amtsgericht Frankfurt am Main, Heiligkreuzgasse 34, 60313 Frankfurt am Main, Raum: Saal/Gebäude 202 A
Beschreibung
Baujahr: ca. 1951, Wiederaufbau nach Zerstörung im zweiten Weltkrieg
Wohnfläche ca. 64 qm
Beitreibende Gläubiger: Volksbank Alzey-Worms eG, Marktplatz 19, 67547 Worms, Geschäftszeichen: 32984100/hoo
Kontoverbindung für die Überweisung der Sicherheitsleistung: Gerichtskasse Frankfurt am Main: Landesbank Hessen-Thüringen, IBAN: DE73 5005 0000 0001 0060 30, BIC: HELADEFFXXX, 1 Woche vor dem Termin unter Angabe des Kassenzeichens: 139023802018.
Objektdetails
Ausstattung & Eigenschaften
Gutachten-Analyse
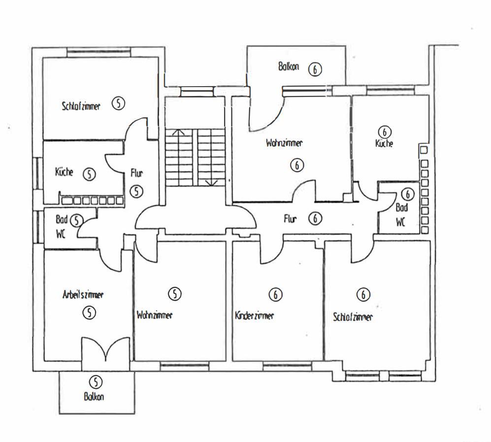
Raumaufteilung
Zustand
Festgestellte Mängel (3)
Baubeschreibung
Renovierungsbedarf
Energie & Heizung
Grundbuchdaten
Infrastruktur in der Nähe
Marktattraktivität
Verkehrswert
375.000 €
Aktionen
E-Mail-Benachrichtigung bei Absage, Verlegung oder Preisänderung des Versteigerungstermins.
Versteigerungsart
Versteigerung im Wege der Zwangsvollstreckung
Ähnliche Objekte
Ähnliche Objekte in der Nähe werden bald verfügbar.

