
Eigentumswohnung (1 bis 2 Zimmer), Sondernutzungsrechte Kellerraum, Fahrradstellplatz, Pkw-Stellplatz im Freien
Aktenzeichen: 0002 K 0017/2025
Nordrhein-Westfalen
Waldbröl
Versteigerungstermin
Dienstag, 28. April 2026, 09:00 Uhr
Versteigerungsort
Amtsgericht Waldbröl, Hauptgebäude, Gerichtsstr. 1, 51545 Waldbröl, Etage EG, Sitzungssaal 0.12
Beschreibung
Objektdetails
Ausstattung & Eigenschaften
Gutachten-Analyse
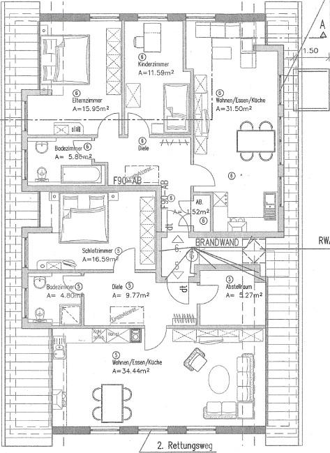
Raumaufteilung
Zustand
Festgestellte Mängel (3)
Baubeschreibung
Renovierungsbedarf
Energie & Heizung
Grundbuchdaten
Infrastruktur in der Nähe
Marktattraktivität
Verkehrswert
165.000 €
Aktionen
E-Mail-Benachrichtigung bei Absage, Verlegung oder Preisänderung des Versteigerungstermins.
Versteigerungsart
Versteigerung im Wege der Zwangsvollstreckung
Ähnliche Objekte
Ähnliche Objekte in der Nähe werden bald verfügbar.
