
Mehrfamilienhausgrundstück
Aktenzeichen: 0070 K 0112/2023
Berlin
Charlottenburg
Versteigerungstermin
Mittwoch, 29. April 2026, 10:30 Uhr
Versteigerungsort
Amtsgericht Charlottenburg, Amtsgerichtsplatz 1, 14057 Berlin, Saal 120
Beschreibung
Mehrfamilienhausgrundstück in der Koenigsallee 16 I, 16 J, 14193 Berlin
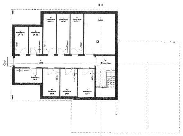
Bei den auf dem Grundstück aufstehenden Gebäuden handelt es sich um zwei teilunterkellerte 3-geschossige Mehrfamilienhäuser mit Flachdach und jeweils zwei um 1/2 Geschoss versetzten Gebäudeteilen mit separaten Treppenhausaufgängen. Das hintere Gebäude Königsallee 16 J (Haus A) weist 9 Wohnungen und das vordere Gebäude Koenigsallee 16 I (Haus B) weist 6 Wohnungen auf. Im Haus A befinden sich im EG, 1. OG, 2. OG jeweils drei Wohnungen. Im Haus B befinden sich im EG, 1. OG, 2. OG jeweils zwei Wohnungen. Die Wohnungen sind als 2 - bis 4 - Zimmerwohnungen mit Größen von 52,00 m² bis 99,63 m² Wohnfläche ausgelegt.
Der Gebäudekomplex verfügt über eine Gas-Zentralheizung mit zentraler Warmwasserversorgung.
Gesamtmietfläche: ca. 1.123,76 m²
Grundstücksgröße: ca. 2.915 m²
Baujahr 2019 - 2021 (Wohngebäude)
Wegen der weiterer Einzelheiten wird auf das ausliegende Gutachten verwiesen (Stand: 09/2024).
Bei den auf dem Grundstück aufstehenden Gebäuden handelt es sich um zwei teilunterkellerte 3-geschossige Mehrfamilienhäuser mit Flachdach und jeweils zwei um 1/2 Geschoss versetzten Gebäudeteilen mit separaten Treppenhausaufgängen. Das hintere Gebäude Königsallee 16 J (Haus A) weist 9 Wohnungen und das vordere Gebäude Koenigsallee 16 I (Haus B) weist 6 Wohnungen auf. Im Haus A befinden sich im EG, 1. OG, 2. OG jeweils drei Wohnungen. Im Haus B befinden sich im EG, 1. OG, 2. OG jeweils zwei Wohnungen. Die Wohnungen sind als 2 - bis 4 - Zimmerwohnungen mit Größen von 52,00 m² bis 99,63 m² Wohnfläche ausgelegt.
Der Gebäudekomplex verfügt über eine Gas-Zentralheizung mit zentraler Warmwasserversorgung.
Gesamtmietfläche: ca. 1.123,76 m²
Grundstücksgröße: ca. 2.915 m²
Baujahr 2019 - 2021 (Wohngebäude)
Wegen der weiterer Einzelheiten wird auf das ausliegende Gutachten verwiesen (Stand: 09/2024).
Objektdetails
Ausstattung & Eigenschaften
Gutachten-Analyse
Raumaufteilung
Zustand
Festgestellte Mängel (3)
Baubeschreibung
Renovierungsbedarf
Energie & Heizung
Grundbuchdaten
Infrastruktur in der Nähe
Marktattraktivität
Verkehrswert
9.200.000 €
Aktionen
E-Mail-Benachrichtigung bei Absage, Verlegung oder Preisänderung des Versteigerungstermins.
Versteigerungsart
Versteigerung im Wege der Zwangsvollstreckung
Ähnliche Objekte
Ähnliche Objekte in der Nähe werden bald verfügbar.
