
land- und forstwirtschaftlich genutztes Grundstück, Zweifamilienhaus, landwirtschaftliche Nebengebäude
Aktenzeichen: 0066 K 0007/2025
Nordrhein-Westfalen
Schwerte
Versteigerungstermin
Montag, 15. Juni 2026, 10:00 Uhr
Versteigerungsort
Amtsgericht Schwerte, Hauptgebäude, Hagener Str. 40, 58239 Schwerte, Etage I, Sitzungssaal 104
Beschreibung
Bieter müssen damit rechnen, dass Sicherheitsleistung in Höhe von 10 % des Verkehrswertes verlangt wird. Barzahlung ist ausgeschlossen. Überweisung der Sicherheitsleistung ist auf das Konto: Zentrale Zahlstelle Justiz - Landesbank Hessen-Thüringen - IBAN: DE08 3005 0000 0001 4748 16 - vorzunehmen. Weitergehende Auskünfte können Sie bei Ihrer Hausbank bzw. unter der Telefon-Nr. 02304/2408035 erhalten.
Das Wertgutachten kann täglich von 8.00 Uhr bis 12.00 Uhr oder nach vorheriger Rücksprache beim Amtsgericht Schwerte eingesehen werden.
WICHTIGER HINWEIS:
Bitte unbedingt bei der Überweisung der Sicherheitsleistung folgenden Verwendungszweck angeben:
Amtsgericht Schwerte - Aktenzeichen (66 K 7/25) - Sicherheitsleistung
Ohne diese Angabe kann die Zentrale Zahlstelle Justiz die Sicherheitsleistung nicht zuordnen.
Auf Grund der Datenschutzbestimmungen kann derzeit eine Bekanntgabe der betreibenden Gläubiger nicht erfolgen. Dies geht nur mit vorheriger Zustimmung der Gläubiger. Die Zustimmung liegt zurzeit noch nicht vor.
Objektdetails
Ausstattung & Eigenschaften
Gutachten-Analyse
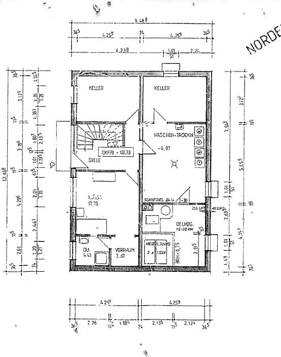
Raumaufteilung
Zustand
Festgestellte Mängel (3)
Baubeschreibung
Renovierungsbedarf
Energie & Heizung
Grundbuchdaten
Infrastruktur in der Nähe
Marktattraktivität
Verkehrswert
391.000 €
Aktionen
E-Mail-Benachrichtigung bei Absage, Verlegung oder Preisänderung des Versteigerungstermins.
Versteigerungsart
Versteigerung im Wege der Zwangsvollstreckung
Ähnliche Objekte
Ähnliche Objekte in der Nähe werden bald verfügbar.
