sonstiges Teileigentum (z.B. Keller, Hobbyraum), Eigentumswohnung (3 bis 4 Zimmer)
Aktenzeichen: 0654 K 0087/2024
Nordrhein-Westfalen
Duisburg
Versteigerungstermin
Dienstag, 04. August 2026, 10:30 Uhr
Versteigerungsort
Amtsgericht Duisburg, Nebenstelle, Kardinal-Galen-Straße 124-132, 47058 Duisburg, Etage 2, Sitzungssaal C215
Beschreibung
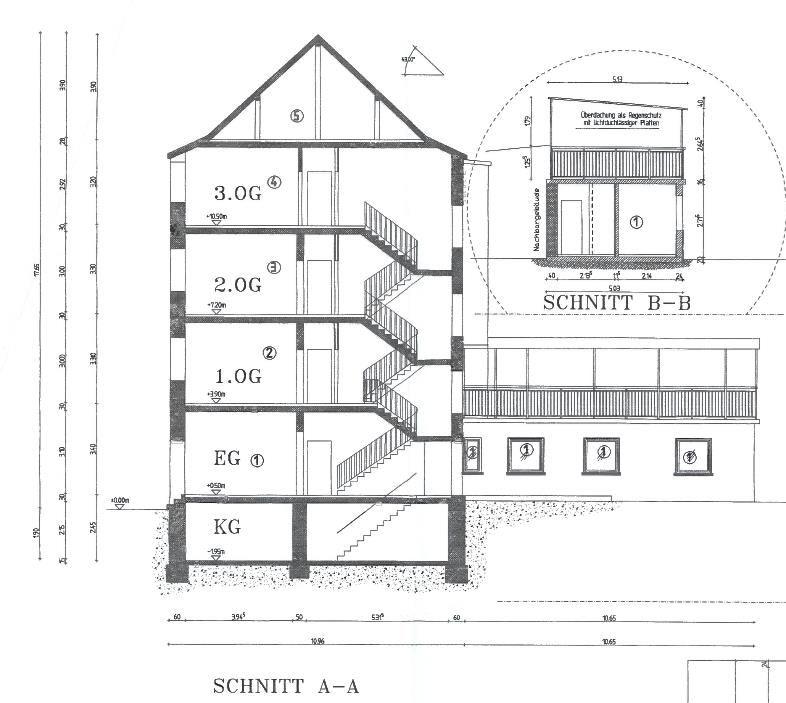
Die Wohnfläche beträgt rd. 80 m²
Ansprechpartner: Patrick Bohne Telefon +49 208 3005-2935 Telefax +49 208 3005-2939 [email protected]
Aktenzeichen: 293/bopa/1154047052
Kontoverbindung Sicherheitsleistung:
ZZJ Hamm
IBAN: DE08 3005 0000 0001 4748 16
LB Hessen-Thüringen,
Verwendungszweck: AG Duisburg, Geschäftszeichen, Sicherheit, Datum der Versteigerung
Objektdetails
Ausstattung & Eigenschaften
Gutachten-Analyse
Raumaufteilung
Zustand
Festgestellte Mängel (3)
Baubeschreibung
Renovierungsbedarf
Energie & Heizung
Grundbuchdaten
Infrastruktur in der Nähe
Marktattraktivität
Verkehrswert
56.600 €
Aktionen
E-Mail-Benachrichtigung bei Absage, Verlegung oder Preisänderung des Versteigerungstermins.
Versteigerungsart
Versteigerung im Wege der Zwangsvollstreckung
Ähnliche Objekte
Ähnliche Objekte in der Nähe werden bald verfügbar.

