Einfamilienhaus, land- und forstwirtschaftlich genutztes Grundstück
Aktenzeichen: 0007 K 0017/2025
Hessen
Langen (Hessen)
Versteigerungstermin
Donnerstag, 18. Juni 2026, 10:00 Uhr
Versteigerungsort
Amtsgericht Langen (Hessen), Zimmerstraße 29, EG Saal A
Beschreibung
- laut Gutachten: Einfamiliendoppelhaushälfte und Gartengrundstück-
Bankverbindung für den Fall der Überweisung der Sicherheitsleistung:Konto derGerichtskasse Frankfurt am Main: Landesbank Hessen-Thüringen,IBAN: DE73 5005 0000 0001 0060 30, BIC: HELADEFFXXX,Kassenzeichen032317701129
Gläubiger:Kreissparkasse Groß-Gerau, Darmstädter Str. 22, 64521 Groß-Gerau, AZ MFK-KKa-1166331006, Tel.: 06152/7132831, Herr KamphusMagistrat der Stadt Dreieich, Hauptstr. 45, 63303 Dreieich, AZ 6.01/Dc-GP 100041590, Tel.: 06103/601-663Objektdetails
Ausstattung & Eigenschaften
Gutachten-Analyse
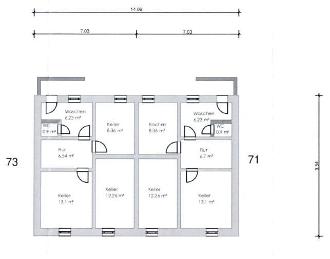
Raumaufteilung
Zustand
Festgestellte Mängel (3)
Baubeschreibung
Renovierungsbedarf
Energie & Heizung
Grundbuchdaten
Infrastruktur in der Nähe
Marktattraktivität
Verkehrswert
434.000 €
Aktionen
E-Mail-Benachrichtigung bei Absage, Verlegung oder Preisänderung des Versteigerungstermins.
Versteigerungsart
Versteigerung im Wege der Zwangsvollstreckung
Ähnliche Objekte
Ähnliche Objekte in der Nähe werden bald verfügbar.

