Einfamilienhaus
Aktenzeichen: 0001 K 0019/2024
Rheinland-Pfalz
Landau
Versteigerungstermin
Mittwoch, 27. Mai 2026, 14:00 Uhr
Versteigerungsort
Amtsgericht Landau in der Pfalz, Saal 213
Beschreibung
Objektbeschreibung/Lage(lt Angabe d. Sachverständigen):
laut Gutachten mit Wertermittlungsstichtag 13.09.2024:
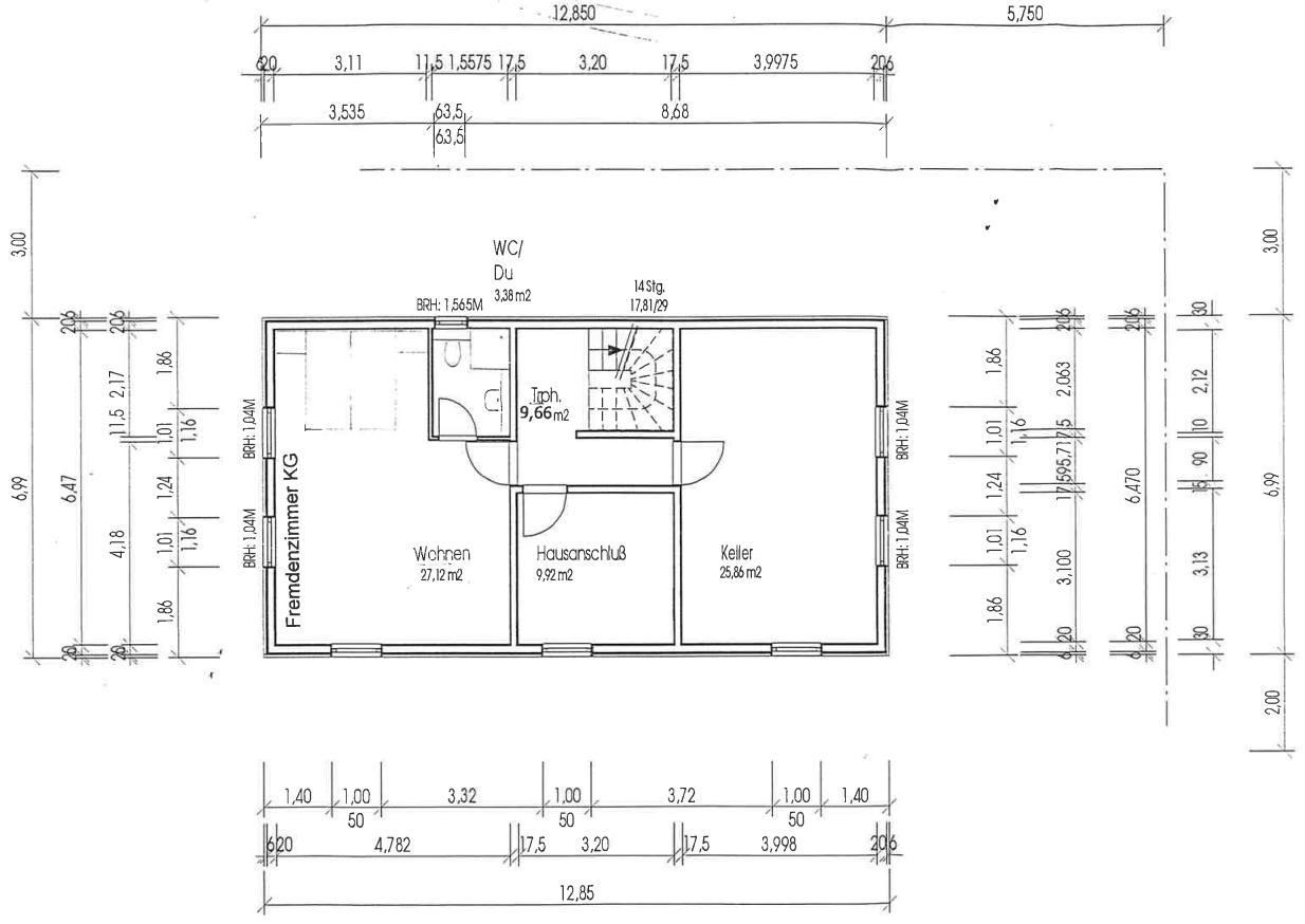
- bebaut mit einem Einfamilienhaus
(genehmigt als Einfamilienhaus mit 2 Ferienwohnungen und 1 Fremdenzimmer)
2-geschoßig, Holzbauweise, vollunterkellertes Gebäude mit Satteldach
- Baujahr 2006
- Objektadresse: Magdalenenweg 6, 76889 Klingenmünster;
Objektdetails
Ausstattung & Eigenschaften
Gutachten-Analyse
Raumaufteilung
Zustand
Festgestellte Mängel (3)
Baubeschreibung
Renovierungsbedarf
Energie & Heizung
Grundbuchdaten
Infrastruktur in der Nähe
Marktattraktivität
Verkehrswert
465.000 €
Aktionen
E-Mail-Benachrichtigung bei Absage, Verlegung oder Preisänderung des Versteigerungstermins.
Versteigerungsart
Zwangsversteigerung zum Zwecke der Aufhebung der Gemeinschaft
Ähnliche Objekte
Ähnliche Objekte in der Nähe werden bald verfügbar.

